25.01.2021 - 15:18 
		
	
	
		Hallo zusammen, schön dass es dieses Forum gibt. Wie mein Name schon sagt bin ich einen Starter. 
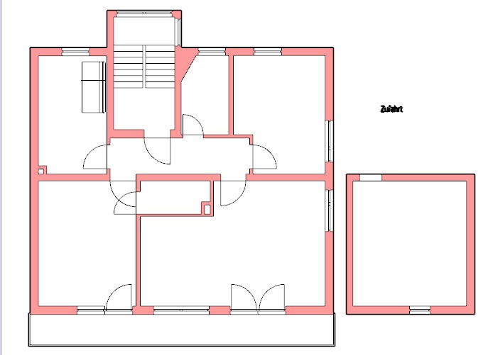
Ich habe mich mit den tollen Youtube Videos von Jörg unser neues Haus nachzeichnen können. Ich tue mich aber nach wie vor sehr schwer mit SU.
Momentan kämpfe ich mit dem Ausdruck vom Grundriss. Ich bekomme zwar die Wände sichtbar, aber die eingezeichnete Fenster und Türen sind im Ausdruck nicht sichtbar. Auf dem Bildschirm schon.
Die Druckerinstellungen habe ich übernommen aus der Bedienungsanleitung „Maßstabsgerecht drucken“ von Jörg (wie zB Standard Oben - Parallele Projektion). Alle mögliche Versuchen der Stile mit/ohne Röntgen habe ich probiert, aber es bleibt beim ausdrucken alles durchgehend Wand. Die Bemassung der Fenster ist auf dem Ausdruck zu sehen, aber keine Striche oder so in der Wand wo mann von oben sehen soll wo ein Fenster ist,
Wie bekomme ich hin, dass in der Wand von oben die Fenster und Türen beim Ausdruck zu sehen sehen.
Vielen Dank und liebe Grüße,
Erika
	
	
	
	
Ich habe mich mit den tollen Youtube Videos von Jörg unser neues Haus nachzeichnen können. Ich tue mich aber nach wie vor sehr schwer mit SU.
Momentan kämpfe ich mit dem Ausdruck vom Grundriss. Ich bekomme zwar die Wände sichtbar, aber die eingezeichnete Fenster und Türen sind im Ausdruck nicht sichtbar. Auf dem Bildschirm schon.
Die Druckerinstellungen habe ich übernommen aus der Bedienungsanleitung „Maßstabsgerecht drucken“ von Jörg (wie zB Standard Oben - Parallele Projektion). Alle mögliche Versuchen der Stile mit/ohne Röntgen habe ich probiert, aber es bleibt beim ausdrucken alles durchgehend Wand. Die Bemassung der Fenster ist auf dem Ausdruck zu sehen, aber keine Striche oder so in der Wand wo mann von oben sehen soll wo ein Fenster ist,
Wie bekomme ich hin, dass in der Wand von oben die Fenster und Türen beim Ausdruck zu sehen sehen.
Vielen Dank und liebe Grüße,
Erika

 
 

 



